18室内《休闲娱乐空间设计》课程作品展
日期:2020-11-12  作者: 来源:  浏览量:498

 课程名称:《休闲娱乐空间设计》

 

授课班级:18室内

授课教师:李海海


走进电影院,

我们可以感受到绝佳的视觉体验和优雅的空间环境,两者相映成趣,自然地相互交融。


这种高雅的艺术氛围,

需要从内而外的倾注设计师和艺术家们多少的心血和智慧。


而对于在室内设计道路上不断学习的我们,

尽管不能苛求影院设计与艺术作品的内容完全一致,但也会努力让影院设计具有高度的艺术性,塑造一种文雅的艺术氛围,让观影者拥有更好的观影体验。


接下来,让我们一起走进属于你我创造的光与影的世界。


《寻觅之境作者:18室内 阳文广

设计说明:

据报道,作为世界上增长最快的影院电影市场之一,中国的票房收入已经超过了美国。但2019年上半年出现了下降。随着中国影院数量的不断增加,以及由此产生的屏幕数量的不断增加,电影的类型学应该如何演变才能扭转这一趋势呢?

 

答案是双重的,首先,所提供的产品——电影——需要跟上时代。电影本身在某种程度上已经停止了作为一种艺术形式的发展。有许多新的品牌技术接受来自中国的影迷,大屏幕上(CGS)与3d功能(如IMAX)杜比大气压环绕声系统,但好莱坞制作电影制片厂过于关注知识产权,而不是创新的叙事。

 

随着中国科幻电影的崛起,在从科幻电影寻找灵感,创造了一个更纯粹、更有艺术感的空间,让游客在看电影之前平静下来,净化他们的心灵。”在材料的选择上,也从美术馆获得了灵感。  

 

以灰色石材、混泥土和镜子为特色。为了平衡这些平静的区域,并象征着科幻和前卫电影情感和激情的一面,这些空间被紫外线蓝色和令人震惊的紫红色所主导。受电影摄像机镜头的启发,圆形元素是室内反复出现的主题——从电子海报盒到标识元素。但也许最有趣的地方,在这里,巨大的LED屏幕环绕着游客。

 

“寻觅之境”展示了从科幻形式中汲取灵感如何有助于“激情”电影体验,但我们都知道,更多的转型变化肯定会发生。

 

中国是一个资源丰富的国家,我们相信中国的电影院将逐渐转型为具有全新功能和身份的电子游戏和电子竞技平台。


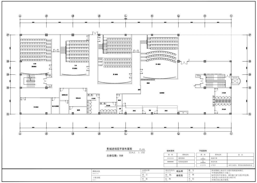
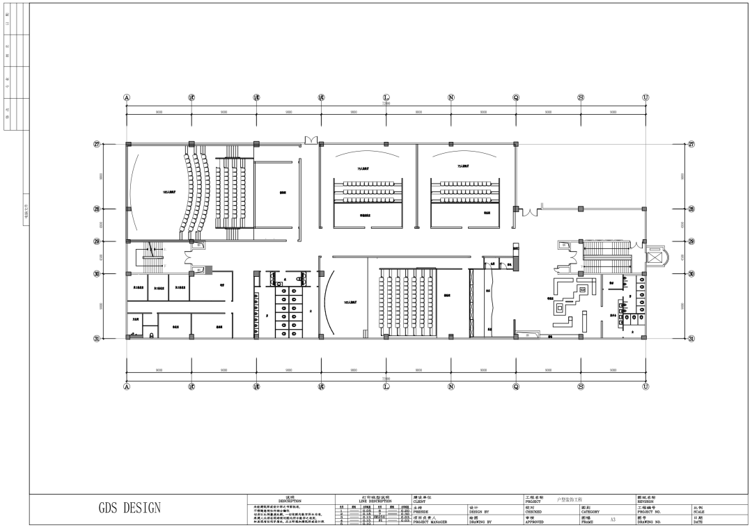
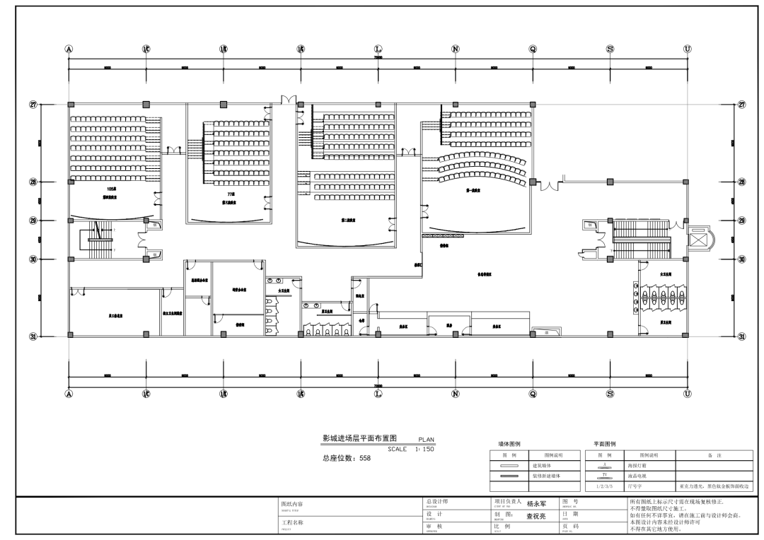
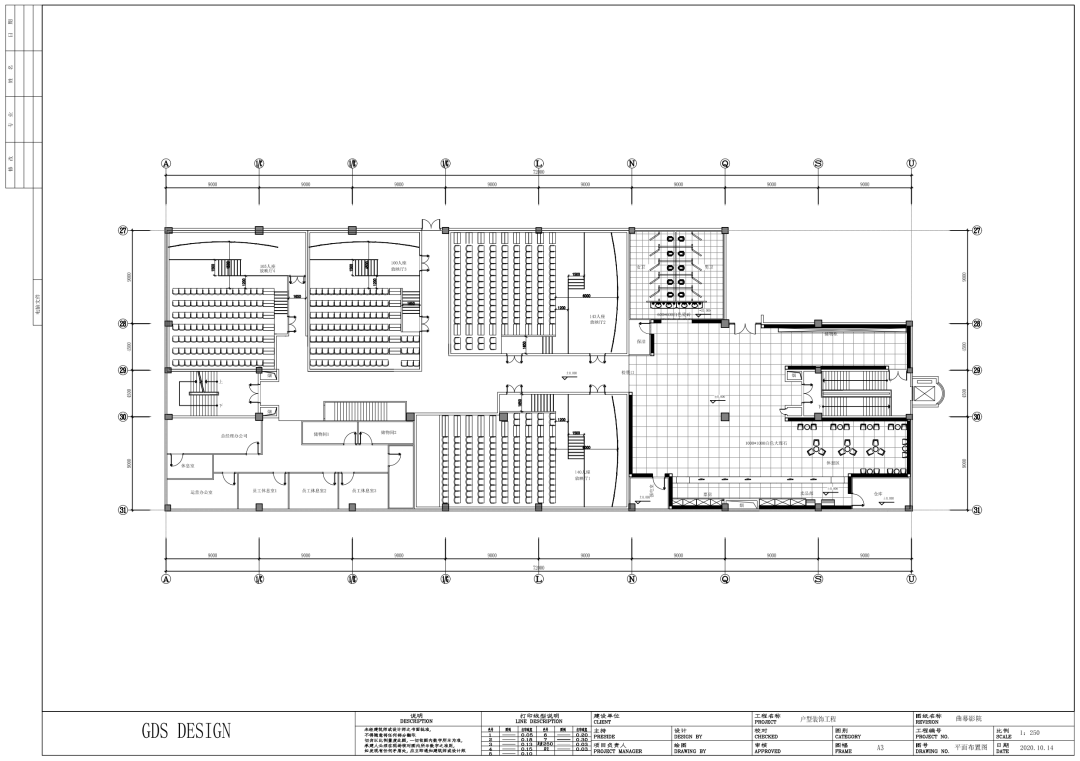
作品展示


平面布置图

图片

效果图

图片

图片

图片

图片

图片

图片

图片

图片  


《矢之域》

作者:18室内 彭奕凯

设计说明:

此作品的设计概念,采用直和横的线条堆砌出来,在影院四周散落了一条又一条的纵横线条,将影院的现实和虚幻元素紧紧的结合起来。建筑中的设计元素,借鉴了现实中戏院内的设计,以纵横的线条为主调,把电影中虚无缥缈的世界与影院设计互相结合,用一直一横的网络线建构整个设计的主题,表现出现实与虚幻之间的奇妙关联。其次,整个空间以黄色为主调木柱,交错排列在天花上,呈现出空间的立体感,增加虚拟建筑的感觉,木柱与灯光的互相结合,提升了空间感以及不一样的照明效果,时而迎合,时而冲击,让空间能够表现出强烈的冲击感及黏合感。


作品展示


平面布置图

图片

效果图

图片

图片

图片

图片

图片


《菲林铁盒》

作者:18室内 曾志超


设计说明:

作为电影院的设计主题,透过利用菲林铁盒圆圆的外型,打造出一个充满张力、前卫的观影空间,菲林圆盘的圆盘连绵不断,给人一种视觉上的震撼,然而在同时大地色调为整体营造出一种温馨的氛围。

 

走进电影院,观众会被满布整个天花的圆盘震慑。菲林铁盒化身为好几十个直径接近三米的大型圆形盘子,以巧妙的手法把串连起来,组成横跨整个大堂的巨形天花装饰,效果非常震撼。这些盘子紧密地互相重叠排列,连绵的盘子有高有低,木纹加上灯光效果让天花装饰看起来会产生移动的幻觉。盘子由漆上木纹的铝板制成,让原本是平面的盘子更为立体,也让铝板看起来更有质感、更显高贵。设计师刻意采用了大地色系为主要色调,让大堂的气氛更加柔和,营造一种温馨的感觉。地面深浅木纹石,跟天花装饰的圆盘形成平行线,放眼望去,较深色的云石就好像天花圆盘投影在地上的阴影,为天花的装置增添动感。象征菲林圆盘的圆盘连绵不断,给人一种视觉上的震撼,然而在同时大地色调为整体营造出一种温馨的氛围。

 

影厅内也有加入菲林铁盒的元素。圆片,和大堂的圆盘天花装饰互相呼应。小圆片立体地分别从天花垂下,四方百面地围绕着观众,巧妙地营造小圆片在飞驰却又不会落下的幻觉。而地毯的图案揉和了大堂的两个主要元素,简单的线条勾划出天花装饰和石材地板的外型,显示了整个影院设计的一体性。为整个影院所用的色调作完美的首尾呼应。


作品展示


平面布置图

图片

效果图

图片

图片

图片

图片

图片


《威逸星空》作者:18室内 蒋慧莹

设计说明:

整个影院空间的设计灵感来自梵高的星空,大厅顶部采用蓝黄白金属色的铝板组和而成,通过暗藏的灯管使得顶部灯光变化富有层次感。地面采用夜晚星空元素,加上各类线性的穿插,有一种独特的空间体验感。影厅中间走道采用喷黑的裸顶,加上暗蓝色灯带将整个空间贯穿起来。并且整个影院设计迎合“绿色建筑”理念,充分太阳能板跟踪功能,最大限度吸收太阳能,利用太阳能,节约资源。

 

本方案在影院设计手法中,通过颜色、线条、灯光、材质的搭配,讲多重元素结合,将梵高星空中的艺术自由形态表现出来,使得观众有更好的视觉感官体验,达到能更愉悦舒适的观影的效果。


作品展示


平面布置图

图片

效果图

图片

图片

图片

图片

图片

图片

图片

图片


《咖色云石》

作者:18室内 周广


设计说明:

现今的世代什么都讲求高科技,电影院的电影播放都已经电子化,不再使用一卷一大卷的光盘。以前电影院的放映室堆满扁圆形的铁盒,这些盒子里盛载着一部又一部的电影,可以说是电影的标志。这次设计以光盘作为电影院的设计主题。象征蝶片的圆盘连绵不断,给人一种视觉上的震撼,然而在同时大地色调为整体营造出一种温馨的氛围,整体的色调相互平行呼应,为整个影院所用的色调作完美的首尾呼应。


作品展示


平面布置图

图片

效果图

图片

图片

图片

图片

图片

图片


《曲幕》作者:18室内 李云龙

设计说明:

波浪卷曲造形设计细节,模仿河流自然弯曲的形态,波浪墙身一直延伸至走廊,引领着观众走到影厅。为令整个感觉更加一致,墙身的标志更采用了圆边的字体设计。影厅之中墙身的造型通过贯穿整个空间的线条链接起来,就好像电影放映室,胶片迅速的转动起来,从而看到银幕上动态的画面,同时又结合的河流的弯曲和波光的反射,当观众醉心地欣赏电影的同时,设计亦不经意地把它们串连起来。

 

影院大堂卷卷曲曲的波浪墙身,加上从天花而降的波浪卷曲造形设计,捕捉河流自然弯曲的形态,并且流动的河水在阳光的照射下,波光粼粼,所以我们用了材料本身的颜色,以更加自然的方式呈现这一设计主题。波浪墙身和天花没有特定的规律,而是随意地布满整个大堂,让人感到无拘无束。


作品展示


平面布置图

图片

效果图

图片

图片

图片

图片

图片



收藏本页